Закрыть

НПФ «МОДУС-Н»

domofon@domofon.ru

+7 (499) 251-13-00

Калькулятор ДСН/ДСНМЦ(2)

Общие
сведения
Шаг 1выбор двери
Шаг 2доп. комплект поставки
Шаг 3покрытие
Шаг 4оборудование
Шаг 5расчёт цены

ВНИМАНИЕ!
Перед началом использования Калькулятора просим Вас ознакомиться с материалами данного раздела. Это упростит работу с Калькулятором, и избавит Вас от ряда дополнительных вопросов по модификациям Дверей VIZIT.

Дверь: элемент стеновой конструкции, предназначенный для входа (выхода) во внутренние помещения зданий (сооружений) или для прохода из одного помещения в другое, и состоящий из дверного проема, дверного блока, системы уплотнений, монтажных швов, деталей крепежа и облицовки.

1. Настоящий Калькулятор позволяет выполнить расчет стоимости металлических входных дверных блоков серии СТАНДАРТ (ВИЗИТ-ДСН), серии КОМФОРТ (VIZIT-ДСНМЦ) или серии КОМФОРТ-ПЛЮС (VIZIT-ДСНМЦ2)

Дверной блок: конструкция, состоящая из коробки (рамы), с навешенным на петли полотном с запирающими устройствами, обеспечивающая в закрытом положении полотна защиту помещений от климатических, шумовых и других воздействий, а также от несанкционированного прохода. Дверной блок может включать в себя ряд дополнительных элементов: ручку, кабель-канал, доводчик (устройство закрывания двери) и др.
Дверная коробка (рама): сборочная единица дверного блока, предназначенная для навески полотна (полотен), жестко закрепляемая к откосам дверного проема.

Дверной проем: проем в стене, предназначенный для монтажа дверного блока, фрамуги и установки монтажного уплотнения.

Дверные блоки ТМ VIZIT предназначены для использования в многоквартирных домах, в офисных и производственных зданиях. Для максимальной долговечности к фурнитуре Дверного полотна предъявляются повышенные требования.

Дверное полотно (створка): сборочная единица дверного блока, соединенная с коробкой посредством петель.

2. Перед выбором опции или указанием размеров, просим ознакомиться с содержанием информационной ссылки по каждому параметру, а также с информационным буклетом и видеопрезентацией, расположенными на этой странице.

3. Данный Калькулятор представляет внешний вид выбранного дверного блока в ознакомительных целях. Главным документом об итоговом внешнем виде будет являться чертеж, согласованный с Заказчиком при подписании Договора Поставки.

4. Ширина дверного полотна составляет 915мм для всех вариантов дверных блоков, поэтому минимальная ширина дверного проёма составляет 1060мм. При ширине проёма более 1090мм в дверном блоке формируется вставка вертикальная.

Вставка вертикальная: неоткрывающееся дверное полотно, устанавливаемое рядом с отрывающимся полотном.

Для серии «Комфорт» при ширине дверного проёма от 1300мм есть опция «Полотно дополнительное».

Полотно дополнительное: открывающееся дверное полотно, устанавливаемое рядом с основным полотном. Используется при необходимости увеличить Дверной проём в свету.

Дверной проем в свету: свободное пространство, образующееся после открывания дверного полотна (полотен) на 90 градусов. (Свод Правил СП 1.13130.2020 "Системы противопожарной защиты. Эвакуационные пути и выходы". Минимальная ширина дверного проема в свету для дверных блоков ВИЗИТ-ДСН составляет 955мм,  для VIZIT-ДСНМЦ - 885мм и для VIZIT-ДСНМЦ2 - 900мм.

Дверной блок, который имеет как основное полотно, так и полотно дополнительное, является Двупольным.

Двупольный дверной блок: дверной блок, состоящий из двух или нескольких полотен, установленных в одну дверную коробку. Основную створку двупольного дверного полотна используют постоянно, дополнительную – при необходимости.

При наличии дверного проёма большой ширины (от 1600мм) используется Дополнительная боковая вставка.

Дополнительная боковая вставка: вертикальная вставка, применяющаяся при больших габаритах дверного блока по ширине. Может устанавливаться как со стороны основной створки, так и с противоположной стороны.

5. Стандартная высота дверных блоков ВИЗИТ-ДСН и VIZIT-ДСНМЦ(2) составляет 2050мм - для проемов высотой 2070мм. 

Для дверных проемов высотой до 2370мм применяется вставка горизонтальная.

Вставка горизонтальная: неоткрывающееся дверное полотно, расположенное вверху дверного блока. Используется в ДСНМЦ(2) и ДСН при высоте дверного проема от 2070 мм до 2370 мм.

Для дверных проемов высотой от 2380мм до 3500мм применяется фрамуга.

Фрамуга: конструктивный элемент, который устанавливается над дверным блоком отдельной деталью.


Дверное полотно блоков серии Комфорт-Плюс оснащено стеклопакетом 4-16-4И размером 330х1500мм с серым тонированием (60%) и с защитным трафаретом на выбор.

Защитный трафарет: конструктивный элемент, который устанавливается на стеклопакет дверного полотна блоков серии Комфорт-Плюс.

Есть возможножность производства дверных блоков для проемов высотой менее 2070ммшириной менее 1060мм, с одним большим стеклом 500х1000мм,  или с опциями, не описанными Калькулятором. Данные вопросы можно обсудить, обратившись к менеджеру по e-mail:  info-mk@dvizit.ru

Для начала расчета перейдите на "Шаг 1"

Тип двери
Серия «Стандарт»

Дверные блоки ВИЗИТ-ДСН серии "Стандарт" изготавливаются по ГОСТ 31173-2016.

В базовой комплектации дверные блоки подготовлены к установке необходимых компонентов системы доступа: замка (ML370), доводчика (2 типоразмера), кнопки для выхода. Компоненты устанавливаются при их дополнительном выборе.

Отличительная особенность – оцинкованный лист, верхняя установка замка, усиленные петли, эргономичная дверная ручка.

Расчет и последующее изготовление дверного блока выполняются исходя из вводимых в Калькулятор размеров дверного проема.

Серия «Комфорт»

Дверные блоки VIZIT-ДСНМЦ серии "Комфорт" изготавливаются по ТУ 5284-015-18336261-2012.

В базовую комплектацию дверных блоков входят необходимые компоненты системы доступа: замок (ML370), доводчик (VIZIT-DC503S ARCTIC), кнопка EXIT 1000, защитные накладки из нержавеющей стали:
- на порог,
- под руку с внутренней стороны,
- внизу створок снаружи и внутри.

Отличительная особенность – оцинкованный лист, центральная установка замка, усиленные петли, дверная ручка с декоративной накладкой из нержавеющей стали.

Расчет и последующее изготовление дверного блока выполняются исходя из вводимых в Калькулятор размеров дверного проема.

Серия «Комфорт-Плюс»

Дверные блоки VIZIT-ДСНМЦ2 серии "Комфорт-Плюс" изготавливаются по ТУ 5284-015-18336261-2012.

В базовую комплектацию дверных блоков входят необходимые компоненты системы доступа: замок (ML370), доводчик (VIZIT-DC503S ARCTIC), кнопка EXIT 1000, защитные накладки из нержавеющей стали:
- на порог,
- под руку с внутренней стороны,
- внизу створок снаружи и внутри.

Отличительная особенность – оцинкованный лист, центральная установка замка, усиленные петли, дверная ручка-штанга из нержавеющей стали, стеклопакет 330х1500мм с защитным трафаретом.

Расчет и последующее изготовление дверного блока выполняются исходя из вводимых в Калькулятор размеров дверного проема.

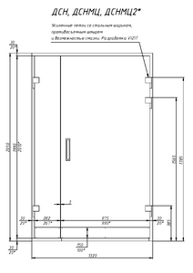
Размеры дверного проёма:

Размер дверного блока определяется исходя из размера дверного проема, за минусом 2 см на зазоры и округлением в меньшую сторону до четного (по ширине) и нечетного (по высоте) размера в сантиметрах. 
Например: размер проема – 1110х2100 мм, размер дверного блока – 1080х2070 мм.

Для проема высотой до 2370мм Изготовитель предложит Заказчику "фрамугу" в единой раме с дверным блоком - вставку горизонтальную. Данное предложение будет отображено в Договоре поставки и Чертеже внешнего вида.

Возможность изготовления дверного блока для проема высотой менее 2070мм, или шириной менее 1060мм, просим обсудить, обратившись по e-mail:  info-mk@dvizit.ru.

от 1060 до 2020
от 2070 до 3500

* общая площадь дверного проёма не должна превышать 5,5 м2

Дверное полотно

Дверное полотно (основная створка) в зависимости от исполнения может иметь петли справа (правая дверь) или слева (левая дверь):

           
 петли справа                 петли слева

Вставка/полотно дополнительное

Вертикальная вставка / полотно дополнительное предусматривает размешение на них блока вызова домофона.

Для удобства  его установки имеется встроенный монтажный отсек с кабель-каналами для блока вызова и телекамеры.

Вертикальная вставка - "глухая" (неподвижная),  полотно дополнительное открывается при необходимости.

Полотно дополнительное имеет поворотные петли (как на основной створке), верхний и нижний фиксаторы закрытого состояния, металлический "гибкий ввод" для предотвращения заминания кабеля при открывании створки.

Варианты расположения дополнительной вставки

При ширине дверного проема более 1650 мм в конструкции дверного блока предусматривается одна или две дополнительные вертикальные вставки (левая, правая) расположение которых задается в Калькуляторе.

Остекление

В дверное полотно серии "Комфорт"
могут быть установлены один или два
стеклопакета 4-6-4 150х1000мм с бронзовым
тонированием.

        

В дверное полотно серии "Комфорт-Плюс" устанавливается энергосберегающий стеклопакет 4-16-4И 330х1500мм, серое тонирование.
.

         

 

Наличники

Наличники обеспечивают эстетическое оформление установленного  дверного блока в дверном проеме.
Наличники бывают:
- наружные ННЦ-ш-д (Наличник Наружный из оцинкованной стали) и
- внутренние НВЦ-ш-д (Наличник Внутренний из оцинкованной стали),
где "ш" - ширина, "д" - длина наличника.

В комплекте наличников КННЦ-ш-д или КНВЦ-ш-д - соответствующего наличника - 3 шт.

 

Наружные

        Профили наличников наружных:

 

Пример монтажа наличников для дверных блоков ДСН/ДСНМЦ(2, 3)


  

Внутренние

Профили наличников внутренних:

Пример монтажа наличников для дверных блоков ДСН/ДСНМЦ(2, 3)

Выбор защитного трафарета

Примеры защитных трафаретов:

Каталог защитных трафаретов >>>

Выбор № подъезда

Примеры защитных трафаретов:

Каталог защитных трафаретов >>>

Порошковое покрытие
RAL 7022

Умбра серая
RAL 7022

Подробнее

RAL 8017

Коричневый шоколад
RAL 8017

Подробнее

Антик + защитный лак

Антик медный + лак     Антик бронзовый + лак

Подробнее

RAL 7030

Каменно-серый (КС)

RAL 7030

Подробнее

RAL 7040

Оконно-серый (ОС)

RAL 7040

Подробнее

RAL 7024

Серый Графит (СГ)
RAL 7024

Подробнее

Дополнительное оборудование
Замок электромагнитный + кожух замка

      Замок ML305 + кожух замка MK-300:

      Подробнее

Кнопка для выхода

Кнопка для выхода     Кнопка для выхода
EXIT 500                      EXIT 1000

    

Подробнее                      Подробнее

Модуль подсветки VIZIT-LM-3

Модуль подсветки

Подробнее

Накладка из нержавеющей стали:

       Накладка из нержавеющей стали
       на порог и внизу дверного полотна

Внешняя ручка

Внешняя ручка:
РСШ-101 - ручка-штанга из нержавеющей стали
 

РС-101-VIZIT - нержавеющая сталь

Внутренняя ручка

Внутренняя ручка:

PC-201 - нержавеющая сталь


PC-201PL - оцинкованная сталь, порошковое покрытие Platinum + лак

Расчёт цены дверного блока
ИТОГО с НДС: 0руб.
В том числе НДС: 0руб.

В базовую комплектацию входят:

Оцинкованная сталь
Накладка из нержавеющей стали с внутренней стороны под руку

Накладка под руку

Уплотнитель по периметру дверного полотна 9х8,5мм

Уплотнитель дверного полотна 9х8,5мм

Монтажный отсек для БВД во вставке (створке)

Монтажный отсек для БВД и телекамеры:

Кабель-каналы для домофона и телекамеры
Подготовка под установку магнитного замка VIZIT-ML370

Монтажный уголок под верхнюю установку замка ML370

Жесткая транспортная упаковка с фиксацией на транспортном поддоне
Данный расчет не является публичной офертой. Стоимость уточняется при согласовании Договора Поставки. Базовая цена, указанная в расчете, действует в течение 30 календарных дней.

Данный расчет не является публичной офертой. Стоимость уточняется при согласовании Договора Поставки.
Внимание! Базовая цена, указанная в расчете, действует в течение 30 календарных дней.

www.dvizit.ru, Россия, Донецк VIZIT-ЦЕНТР Донбасс
Официальный телеграмм-канал ТМ VIZIT
Телеграмм-канал техподдержки ТМ VIZIT
Вход в личный кабинет

Регистрация | Забыли пароль?